Asking Price $1,800,000
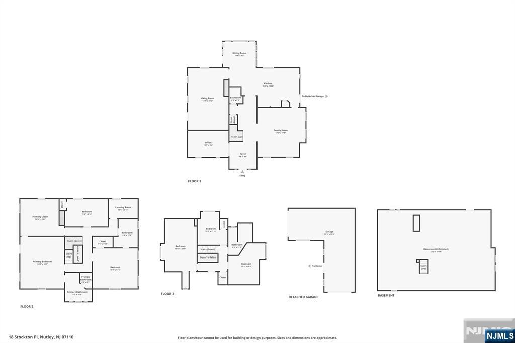
Step into a timeless blend of historic charm and contemporary luxury. Originally built in the 1880s, this beautifully, totally restored home has been meticulously remodeled to preserve its character while offering the comfort and efficiency of modern living. From the moment you arrive, the home’s classic façade welcomes you with pristine landscaping and an expansive porch. Complete with original banisters and period detailing, you are invited to experience a bygone era brought elegantly into the present. The kitchen features all custom cabinetry, modern appliances, and a heated floor. All of the bathrooms have been reimagined with modern design. The three bedrooms on the second floor are spacious and gorgeously designed. The third floor provides flexibility with three more bedrooms, storage space, a full bath, and a window that displays a view of the New York City skyline. A very large skylight in the center of the home adds charm and enchantment as it can be seen from the ground floor through to the sky. Multi-zone heating and cooling allows for comfort in every space. The two car garage and spacious driveway provides ample parking for guests.The owner is a custom builder of luxury homes and sustained its elegant historic character while including both traditional and modern features.
| Year Built: | Pre |
| Garage: | Detached |
| Lot Desc: | Regular |
| Heating/Cooling Type: | Gas,Hot Water,Multi-Zone,Radiant |
| Siding/Exterior: | Clapboard |
| Fireplaces: | 1 Fireplace |
| Virtual Tour: | https://www.zillow.com/view-imx/997f0361-2d0d-4c79-aef4-479f50847903?setAttribution=mls&wl=true&init |
Listing Broker:
Arcadia Realtors
973-228-7060


The data relating to real estate for sale on this web site comes in part from the Internet Data Exchange Program of the NJMLS. Real Estate listings held by brokerage firms other than Kurgan-Bergen Realty are marked with the Internet Data Exchange logo and information about them includes the name of the listing brokers. Last date updated: 04/03/26 Source: New Jersey Multiple Listing, Inc. Some real estate firms do not participate in Internet Data Exchange © and their listings do not appear on this website. Some properties listed with participating firms do not appear on this website at the request of the seller. All information deemed reliable but not guaranteed. © 2026 New Jersey Multiple Listing Service Inc. All rights reserved.
Information herein is deemed reliable but not guaranteed.