Asking Price $899,000
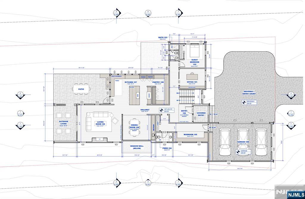
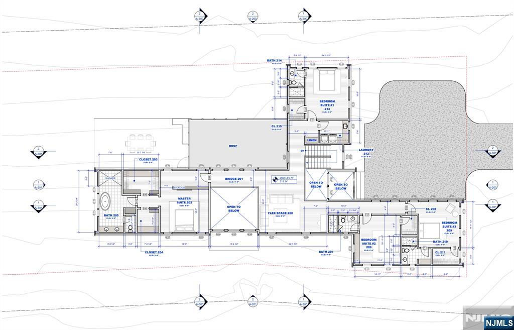
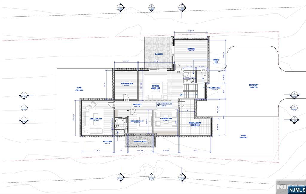
Rare opportunity to own a 1/2-acre lot (approx. 100x200) in the heart of Bergen County, complete with signed and sealed architectural drawings to build a one-of-a-kind, 8,227 SQ FT custom home that checks all the boxes. Choose to design a home to your liking or move forward with the existing shovel-ready plans, included in the sale. The design begins with a driveway court leading to a covered entry and dramatic two-story foyer. The 2,722 SQ FT first floor showcases a gourmet kitchen with center island, cozy eating area with built-in bench, and butler’s pantry. Also on the first floor: formal dining room, formal living room, guest bedroom with full bath, and private office. The attached 3-car garage opens to a spacious mudroom with half bath. The 2,792 SQ FT second floor features three junior suites, a luxurious master suite, flexible bonus room, and laundry room. The 2,712 SQ FT basement includes a gym, theater, legal bedroom with bath, lounge, sitting area, additional bath, storage, and mechanical room. Ceilings: 10–12 ft on 1st floor, 9 ft on 2nd and basement. This home offers 8,227 SQ FT of living space plus a 773 SQ FT 3-car garageâ€â€쳌for over 9,000 SQ FT total. Plans also include a large patio and extended outdoor living wrapping around kitchen and living room for seamless indoor-outdoor flow on this 21,212 SQ FT lot. Additional lot with drawings availableâ€â€쳌see NJMLS #25027283 for 6 Schubert (21,578 SQ FT lot).
| Year Built: | 1900 |
| Garage: | Attached |
| Lot Desc: | Regular |
| Heating/Cooling Type: | Oil,Radiators |
| Fireplaces: |
Listing Broker:
JMichaels Realty LLC
201-918-3555


The data relating to real estate for sale on this web site comes in part from the Internet Data Exchange Program of the NJMLS. Real Estate listings held by brokerage firms other than Kurgan-Bergen Realty are marked with the Internet Data Exchange logo and information about them includes the name of the listing brokers. Last date updated: 12/14/25 Source: New Jersey Multiple Listing, Inc. Some real estate firms do not participate in Internet Data Exchange © and their listings do not appear on this website. Some properties listed with participating firms do not appear on this website at the request of the seller. All information deemed reliable but not guaranteed. © 2025 New Jersey Multiple Listing Service Inc. All rights reserved.
Information herein is deemed reliable but not guaranteed.